
Nell’ambito del PSR 2014-2020, Misura 7 – Tipo di operazione 7.2.01 “Realizzazione di impianti pubblici per la produzione di energia elettrica da fonti rinnovabili” e delle azioni previste per la Strategia Aree Interne, il Comune di Castelnovo ne’ Monti ha avviato la realizzazione di una nuova caldaia presso il quartiere Peep – Pieve, che riscalderà diversi edifici pubblici, tramite cippato proveniente da filiera “corta”, ovvero fornito in un raggio di 70 km massimo da Castelnovo e principalmente dal crinale reggiano.
Il progetto prevede un costo di circa 500.000 € complessivi e ha avuto un finanziamento di € 434.000 su bando regionale. L’apposito bando di gara sarà pubblicato entro la fine del 2017 mentre l’opera sarà realizzata nel 2018.
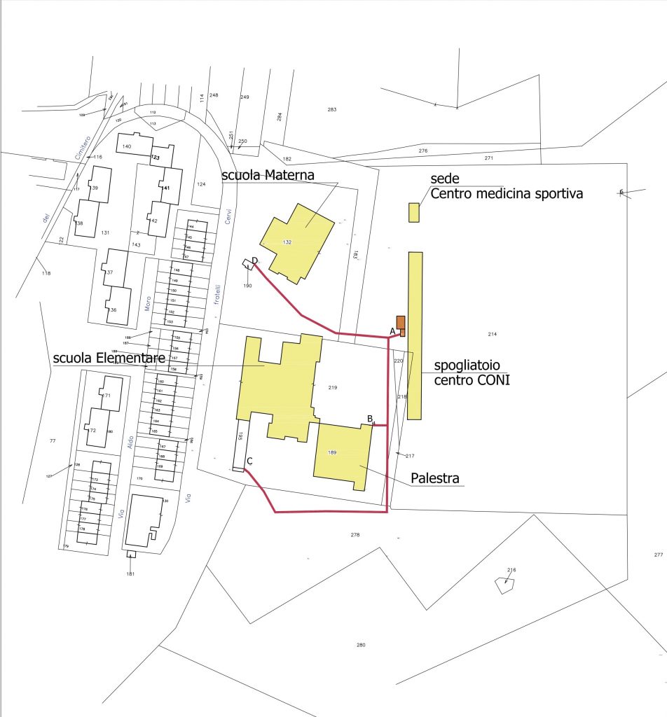
L’intervento consiste nella realizzazione di un Impianto di teleriscaldamento a cippato di legno vergine; saranno collegati alla centrale diversi immobili pubblici presenti in zona: la palestra comunale, spogliatoi e servizi del centro CONI, la sede del Centro di Medicina sportiva, la Scuola elementare, la Scuola materna. Attualmente gli edifici citati utilizzano come combustibile gas metano di rete, ma le caldaie che alimentano i riscaldamenti non sono di ultima generazione. Tutta l’opera prevista si sviluppa su proprietà comunale.
Da alcuni anni il Comune di Castelnovo ha iniziato un programma mirato di riduzione dei consumi energetici, e di riqualificazione e miglioramento delle prestazioni energetiche del proprio patrimonio immobiliare.
L’obiettivo di questo nuovo progetto è ottenere una riduzione drastica delle emissioni di gas climalteranti e polveri sottili in atmosfera, dismettendo combustibile di origine fossile (gas metano) a favore di un combustibile rinnovabile come la biomassa legnosa, di produzione locale. Inoltre la realizzazione comporterà una riduzione drastica dei costi di manutenzione e gestione del calore, con unica centrale termica dotata di telecontrollo per la gestione delle temperature nei singoli edifici. La riduzione delle emissioni comporterà un miglioramento percepibile in primo luogo dai residenti nel quartiere, e nel territorio comunale. Dall’alta parte, l’Amministrazione Comunale avrà una forte riduzione delle spese, di gestione e manutenzione, liberando risorse da destinare ad altre attività.
Sia la realizzazione dell’impianto, che poi le forniture successive alla sua messa in funzione, coinvolgeranno principalmente imprese locali: il materiale legnoso deriverà da interventi silvo colturali nei boschi gestiti dai soci del Consorzio Alto Appennino, ovvero Consorzio Alta Val Secchia, Consorzio Alpe di Succiso, Consorzio Valli d’Asta e Dolo, beni di uso civico.

